

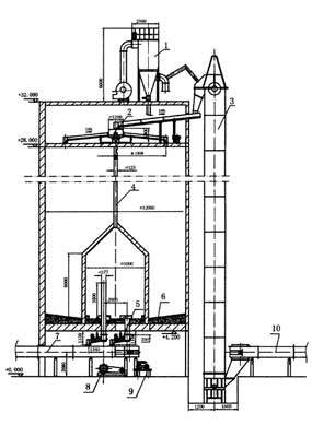
连续式均化库是生料从库顶连续进料,经过充气搅拌的同时连续出料,库在中心位置设一个圆柱形混合室,以降低库内卸料压力,消除漏斗流,在混合室周围6-12卸料孔,在混合室与库壁之间有6-12个充气区,卸料时轮流向中心室进料,进入混合室的物料因混合室连续充气而进一步混合,使合格的生料从高位溢流管卸出,多余气体则由排气管排至外环区,并抽至收尘器净化,但要求生料制备系统连续稳定可靠,具有投资省,电耗低,工艺布置灵活,结构紧凑,操作简单等特点。其均化值为5-9,电耗0.1-0.2kwh/t。

连续式均化库是生料从库顶连续进料,经过充气搅拌的同时连续出料,库在中心位置设一个圆柱形混合室,以降低库内卸料压力,消除漏斗流,在混合室周围6-12卸料孔,在混合室与库壁之间有6-12个充气区,卸料时轮流向中心室进料,进入混合室的物料因混合室连续充气而进一步混合.